
最近和老婆完成了人生一件大事:買房裝潢!
這真的是我們人生另一個重要的起點,新婚的我們未來也準備迎接下一代的到來,心情既興奮又緊張。
我和老婆都在南科上班,所以當初找房子的地點就以交通便利性為首要考量。
最後我們選擇了永康,這裡不僅開車到南科通勤方便,下班後想放鬆、逛逛街,到台南市區也很快。
週末要補貨採買,附近賣場、全聯、家樂福應有盡有,生活機能真的非常棒。
預算:80萬
實際花費:76萬(還省了4萬,老婆超開心的😆)
裝潢細項:
- 木作工程:155000
(保護工程+全室冷氣包管+電視牆面+全室天花板+總開關箱門片)
- 水電工程:95000
(各式開關插座延伸+弱電新增+燈具回路新增+專用插座新增)
- 油漆工程:95000
(全室木作部分上水性水泥漆+電視牆塗料+牆面局部修補+入住後修補一次)
- 系統櫃工程:280000
(全室內櫃體)
- 石材工程:12000
(人造石檯面)
- 窗簾:42000
- 細清工程:18000
- 工程管理:69700
房屋資訊:
- 室內坪數:15坪
- 格局:3房1廳2衛浴2陽台
- 一平面車位
雖然坪數不大,但對我們小夫妻來說剛好,未來有小孩也夠用。


講到設計師,一定要特別感謝我同事!他的新家也是這位設計師裝潢的,當初我就很喜歡他家的風格,所以毫不猶豫找上門。
全境空間規劃真的非常細心,從頭到尾都很有耐心,很多我們沒想到的地方他都幫我們先想到,對剛結婚要打造第一個家的我們來說,真的省心不少。

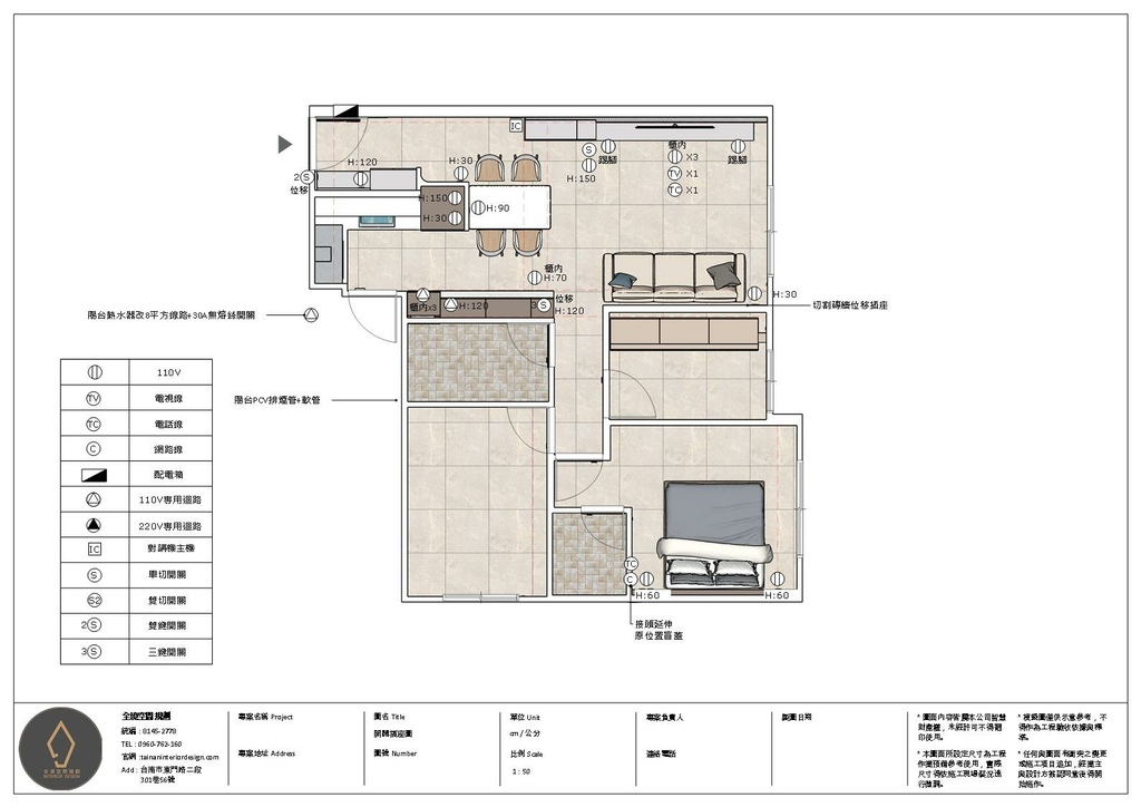
(▲平面圖)



(▲3D渲染圖1,2,3)


(▲系統櫃圖面1,2,3,4,5,6)

(▲木作天花板)


(▲排煙管延伸)
(▲當初建商的排煙管短到被老婆吐槽「是排煙還是燻衣服的?」還好有延長,不然陽台曬衣服直接變炸雞香😂)

(▲木作電視牆、系統櫃安裝)

(▲清潔工程)
【各空間設計與需求】玄關對我們來說就是要實用!設計師幫我們做了一個大鞋櫃,特別貼心的是還做了透氣孔,老婆說這樣鞋櫃內部才不會發臭(她真的很在意這些細節XD)
除了鞋子,日用備品也有專門的收納空間,還預留了污衣吊掛和全身鏡的位置,這裡我們打算買現成的掛衣架與壁鏡,每天出門前整理儀容很方便。



這區域可以說是我們最重視的地方了!原本的廚房需要重新規劃冰箱和餐桌的空間。

▼設計師做了一個很棒的冰箱櫃,從玄關看過去就像一面乾淨的白牆,完全看不出來裡面藏著冰箱!冰箱櫃上方當然也沒浪費,做了收納空間。



▼新做的電器收納櫃真的超實用,檯面特地挑選了和建商原有櫥櫃相似的人造石,整體感很棒。底部還幫掃地機器人預留了專屬停車位(現代家庭必備啊😎)


▼電器平台有做滑軌設計,使用起來順手,內部還增加了電器櫃專用迴路,不用擔心跳電問題。

▼唯一比較麻煩的是排煙管需要延長到陽台外,因為原本的太短了,但處理後效果很好,現在煮飯、曬衣都安心多了!



客廳我們希望保持開闊明亮的感覺,牆面走乾淨素雅路線。老婆特別喜歡奶茶色系,溫暖又不會太厚重。

▼我們平常有收藏公仔的習慣,所以特別請設計師為公仔做了半個收納櫃,還裝了燈條裝飾燈XD讓公仔們都有專屬的展示舞台。

▼收納櫃裡也有預留插座,吸塵器用完就直接放在這裡充電,這點我們原本沒有想到,感謝設計師的貼心。

▼電器部分,我們還買了一台75吋的大電視,配上220公分左右的沙發,下班後和老婆窩在沙發上看電影,真的超放鬆!

整面衣櫃可以收納我們兩個人的衣物,還有一個簡潔的梳妝桌和小收納櫃。老婆每天早上在這邊打扮,心情都特別好。



目前次臥只做了簡單的天花板和冷氣包管,平時當作第二收納空間使用。
家人偶爾來作客時就是臨時客房,未來有小孩了就是小孩房,這個彈性規劃我們很滿意!


主臥我們希望單純一點,就是睡覺休息用,所以沒有做太多收納。床頭板兩側做了插座,手機充電很方便。

▼最貼心的是電燈做了雙切開關設計,睡覺時關燈不用特地走到房門前,在床邊就能關,這個小細節讓生活便利很多!

裝潢預算控制得很好,該省的省,該花的也沒手軟!
最重要的是,這個家完全符合我們現階段的需求,也為未來做了很好的規劃。每天下班回到家,看到這個溫馨的小窩,就覺得所有辛苦都值得了。
老婆說最滿意的就是廚房和更衣間,收納規劃很懂女生的需求。我則是很喜歡整體的色調搭配,溫暖卻不會太厚重,尤其是客廳的奶茶色系,讓整個家感覺很溫馨。
如果也在找設計師,我真的會推薦我們這位:全境空間規劃!不走浮誇風格,實用為主、細節講究,很適合準備打造小家庭的人。
官網:https://tainaninteriordesign.com/
設計師:石乃仁
手機:0960-762-160
LINE ID:nbalakers212
地址:台南市東區東門路二段301巷56號
門市服務時間:一到五8:00-18:00
服務地區:台南、高雄
工程日常(IG):https://www.instagram.com/all_territory/
隨手拍拍(YT):https://www.youtube.com/channel/UCSrZ9rvlFGXYuVbXPpAcD-A

0 留言